PROJET DE CONCEPTION - REALISATION

Phase CONCEPTION :

 Après un premier contact, je vous propose de nous rencontrer sur place, faire votre connaissance, visiter les lieux et bien comprendre vos besoins. En l'absence d'un plan, je prends quelques mesures qui vont m'aider à établir un devis de votre projet qui réponde au mieux à vos attentes.

PREMIER CONTACT :

  •  Visite sur site.

  •  Entretien avec le client et élaboration du programme.
  •  Recherche des plans de l'existant.
  •  Prise de côtes.

PHASE AVANT-PROJET :

  • Relevé de l'existant.
  • Plan de l'existant. 
  • Esquisses et volumétries de principe (1ères propositions) 

PHASE PROJET :

  • Plan projet finalisé et détaillé. 
  • Plans techniques (électricité, sanitaires, cloisons ...).
  • Volumétries définitives du projet (3D).
  • Plans de réalisation du mobilier intégré (plans, élévations, 3D...).
  • Propositions de couleurs / matériaux / mobilier et éclairage.
  • Visuels photo-réalistes avec intégration du mobilier, des éclairages, des couleurs et des matériaux.
  • Liste d'achat et budget estimatif des travaux.

Tarif :  En fonction de la nature et de la complexité du projet.

Phase REALISATION :

  • Planning prévisionnel. 
  • Réalisation des dossiers de consultation des entreprises.
  • Réception des entreprises sur le chantier et remise des dossiers techniques.
  • Réception et analyse des devis avec le Maître d'Ouvrage.
  • Choix des entreprises.
  • Lancement et suivi des travaux. 
  • Réception des travaux.

Tarif :  En fonction de la nature et de la complexité du projet.

PARLEZ-MOI DE VOTRE PROJET D'ARCHITECTURE D'INTERIEUR !

N'hésitez-pas à me contacter, je répondrai rapidement à votre demande.

ME CONTACTER - Lionel CERTIER - Architecture d'intérieur

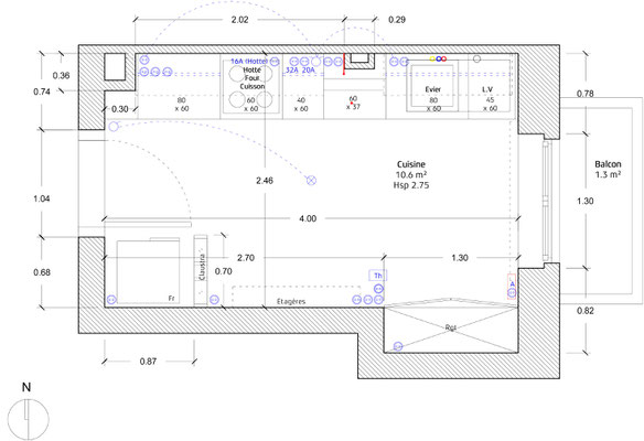
UN EXEMPLE NON EXHAUSTIF DE PROJET DE RENOVATION DE CUISINE AVEC :

  • Un plan de la cuisine existante
  • Un plan de la cuisine projetée + plan électrique
  • Une vue de face de la cuisine projetée + plan électrique
  • 2 vues 3D photoréalistes de la future cuisine
  • 2 photos de la cuisine existante
  • La cuisine en cours de rénovation 
  • Et enfin la cuisine terminée.
Voir les réalisations - Lionel CERTIER - Architecture d'intérieur