CREATION D'UN ESPACE CAFE ET PETITE RESTAURATION A STRASBOURG

Superficie : 40 m²        Création d'un espace dédié à un café et petite restauration dans un bâtiment brut.

 

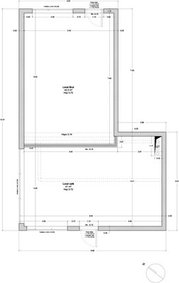
Création d'un espace café et petite restauration. Le local d'activités brut situé au RDC d'un immeuble neuf a été divisé en deux parties puis isolé thermiquement au niveau des murs et des planchers. L'ensemble est composé d'une grande salle pour accueillir les clients, un espace bar et cuisine, un local technique, et les toilettes. 

REALISATIONS - Lionel CERTIER - Architecte d'intérieur à Strasbourg