RENOVATION D'UN APPARTEMENT ET DE SA TERRASSE  A HERLISHEIM - BAS-RHIN

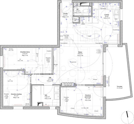
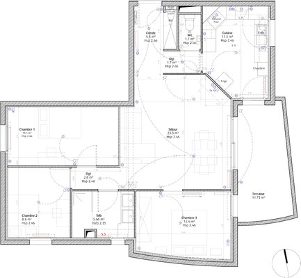
Superficie : 81 m²        Réagencement et rénovation des chambres, du salon-séjour, de l'entrée, de la cuisine et des wc.

 

L'ensemble des pièces a été totalement rénové hormis la salle de bains qui avait déjà fait l'objet d'une rénovation préalable. Le défi de cette rénovation a été d'apporter un maximum de lumière et de perspectives dans la pièce de vie. La cuisine existante, complètement cloisonnée a été ouverte sur la pièce à vivre, ce qui crée aujourd'hui une sensation d'espace supplémentaire dans le salon-séjour, et a permis de récupérer la lumière de la porte fenêtre existante. La nouvelle cuisine s'articule autour du bloc d'entrée qui comprend des rangements (penderie + rangement chaussures) ainsi que les sanitaires, eux aussi totalement rénovés. Les clients souhaitaient un projet sobre et élégant à l'instar de la cuisine moderne et blanche qu'ils ont choisi.

La partie entrée, le bloc sanitaires ainsi que la cuisine sont délimités par un carrelage au sol. Un faux plafond reprend également cette délimitation. Un claustra séparatif vient réchauffer le projet avec une touche de bois et met visuellement à distance l'entrée, du salon-séjour. Il sert également d'assise, de rangement pour les chaussures, ainsi que de vide poches.

Les clients souhaitaient installer la climatisation ainsi qu'une cheminée bio éthanol dans le séjour. La cheminée bio éthanol est insérée dans une niche et une grille décorative vient masquer le disgracieux split mural  de la climatisation.

Les chambres des enfants ont fait l'objet de recloisonnement, afin de rééquilibrer les surfaces. Elles sont identifiables chacune par une peinture de couleur différente. La chambre parentale s'est parée d'une tête de lit sur mesure. Le sol existant (carrelage) a été déposé sur l'ensemble du projet. Il a été remplacé par un parquet massif. L'ensemble de l'électricité a été rénovée.

Au niveau de la terrasse extérieure le sol existant a été déposé, l'étanchéité a été refaite et un carrelage identique au carrelage intérieur a été posé, ce qui donne l'illusion d'une continuité entre l' intérieur et l'extérieur de l'appartement.

REALISATIONS - Lionel CERTIER - Architecture d'intérieur
CUISINES - Lionel CERTIER - Architecture d'intérieur