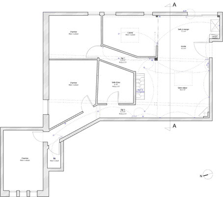
RENOVATION D'UN APPARTEMENT A STRASBOURG - NEUDORF

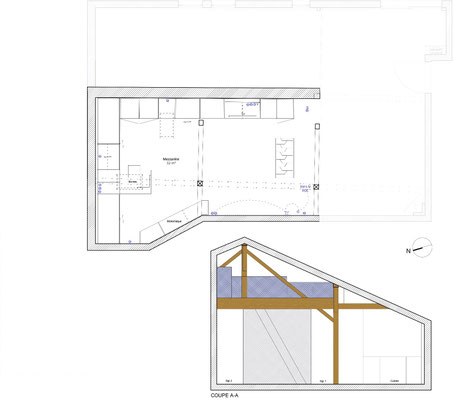
Superficie rénovée au RDC : 37 m² - Superficie rénovée en mezzanine : 32 m² Remise en peinture, rénovation de l'électricité, des sols, et création d'un meuble "couteau suisse" sur mesure.

 

Au niveau du rez-de-chaussée, les murs ont été repris totalement (ponçage de l'enduit projeté existant, enduisage et peinture). L'électricité a été revue et de petits travaux de menuiseries intérieure ont été effectués.

En mezzanine, le besoin des clients en terme de fonctionnalité était de disposer d'un coin salon pour la détente et d'un bureau pour le télétravail, avec suffisamment de rangements pour ces deux activités. Nous avons créé un meuble filant sur mesure en sous-pente, véritable couteau suisse qui regroupe les fonctions rangement, bureau, et meuble TV et qui peut aussi servir de présentoir pour les objets décoratifs ou les collections ... Une bibliothèque a également été créée dans le même style. Les réseaux électriques et réseaux éthernet ont été créés, le sol a été remplacé et les murs ont été rénovés et repeints.

REALISATIONS - Lionel CERTIER - Architecture d'intérieur