RENOVATION D'UNE SALLE D'EAU A STRASBOURG - KRUTENAU

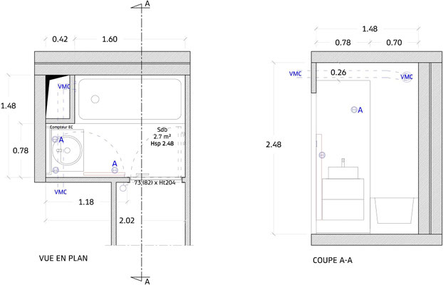
Superficie : environ 3m²    Rénovation complète (sols, murs et plafonds, meubles et appareils sanitaires) d'une salle d'eau.

 

Rénovation complète d'une petite salle d'eau aveugle. Une douche, un espace pour la machine à laver, et des rangements ont été créés en lieu et place de la baignoire existante. Les carreaux de métro, le bois, et les touches de noir, confèrent à cette salle d'eau un esprit industriel / rétro que souhaitait la cliente. 

REALISATIONS - Lionel CERTIER - Architecture d'intérieur
VOIR LES SALLES DE BAINS - Lionel CERTIER - Architecte d'intérieur à Strasbourg